81370 Saint-Sulpice-la-Pointe
Maison T4 Saint-Sulpice-La-Pointe
Maison T4 Saint-Sulpice-La-Pointe
Venez découvrir cette maison de plain-pied de 4 pièces construite en 2021 (RT 2012) à proximité du centre-ville de Saint-Sulpice-La-Pointe.
Cette maison est édifiée sur une parcelle de 495 m2 entièrement clôturée. Les places du midi permettent de stationner facilement deux véhicules.
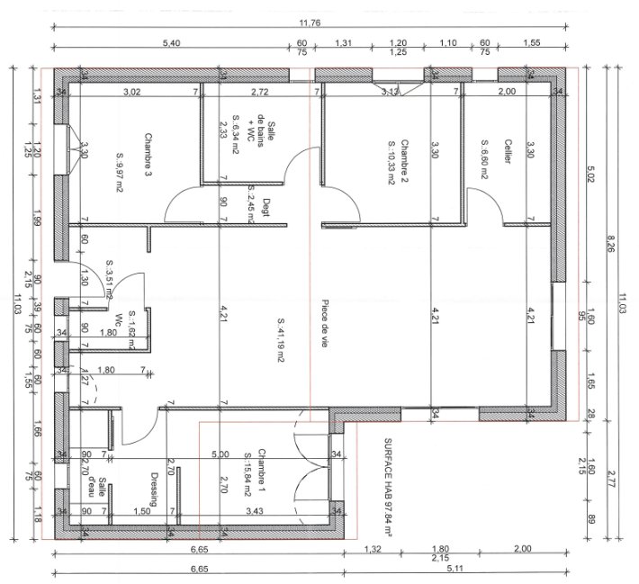
L'entrée agrémentée d'un grand placard de rangement donne accès à une pièce de vie d'une superficie de 42 m2. Fonctionnelle, la pièce de vie est composée d'une cuisine ouverte moderne et équipée donnant accès à un cellier/buanderie. Outre les coins salon et salle à manger, cette pièce réserve également un coin bureau.
La maison dispose de trois chambres. Un premier espace est composée de 2 chambres (avec placards intégrés) et d'une salle de bain avec baignoire et wc. Un second espace comprend une suite parentale associée à son dressing et sa salle d'eau. Un second wc situé à l'entrée de la maison complète ces prestations.
Côté extérieur, une terrasse entièrement carrelée exposée sud-ouest vous permettra de profiter des beaux jours avec plénitude. Un abri de jardin complète cet espace.
La maison est équipée de gainable (chauffage et climatisation) avec consoles de contrôles indépendantes dans chaque pièce.
N'hésitez pas à nous contacter si vous êtes intéressés !
Cette maison est édifiée sur une parcelle de 495 m2 entièrement clôturée. Les places du midi permettent de stationner facilement deux véhicules.
L'entrée agrémentée d'un grand placard de rangement donne accès à une pièce de vie d'une superficie de 42 m2. Fonctionnelle, la pièce de vie est composée d'une cuisine ouverte moderne et équipée donnant accès à un cellier/buanderie. Outre les coins salon et salle à manger, cette pièce réserve également un coin bureau.
La maison dispose de trois chambres. Un premier espace est composée de 2 chambres (avec placards intégrés) et d'une salle de bain avec baignoire et wc. Un second espace comprend une suite parentale associée à son dressing et sa salle d'eau. Un second wc situé à l'entrée de la maison complète ces prestations.
Côté extérieur, une terrasse entièrement carrelée exposée sud-ouest vous permettra de profiter des beaux jours avec plénitude. Un abri de jardin complète cet espace.
La maison est équipée de gainable (chauffage et climatisation) avec consoles de contrôles indépendantes dans chaque pièce.
N'hésitez pas à nous contacter si vous êtes intéressés !
284 500 €
98 m²
Code Postal
81370
Ville
Saint-Sulpice-la-Pointe
Type de bien
Maison
GES
A
Classe énergie
A
Mise en ligne
21 mars 2026
Nombre de vues
1 559