66480 Maureillas-las-Illas
Maureillas-las-Illas (66480) : Pavillon en construction
Maureillas-las-Illas (66480) : Pavillon en construction
Pavillon 4 faces de plain-pied en construction à Maureillas 66480.
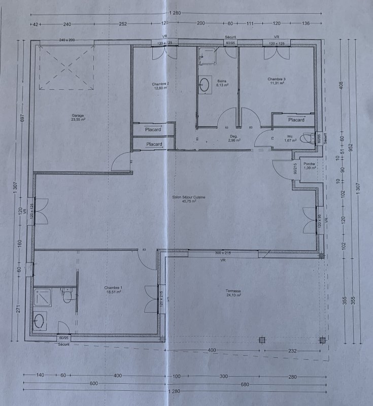
Vendu hors d'eau, hors d'air, possibilité d'aménager 3 chambres dont une suite parentale avec dressing et douche, une salle de bain, un wc séparé, salon séjour cuisine 45 m², garage 23 m² et terrasse couverte 24 m².
Pas de vis à vis coté terrasse.
Dossier de construction complet visé par des experts en bâtiment.
Terrain clos sur 2 cotés.
Budget à prévoir pour les finitions intérieurs : 63 000€ (devis disponibles).
Vendu hors d'eau, hors d'air, possibilité d'aménager 3 chambres dont une suite parentale avec dressing et douche, une salle de bain, un wc séparé, salon séjour cuisine 45 m², garage 23 m² et terrasse couverte 24 m².
Pas de vis à vis coté terrasse.
Dossier de construction complet visé par des experts en bâtiment.
Terrain clos sur 2 cotés.
Budget à prévoir pour les finitions intérieurs : 63 000€ (devis disponibles).
243 000 €
98 m²
Code Postal
66480
Ville
Maureillas-las-Illas
Type de bien
Maison
GES
En cours
Classe énergie
En cours
Mise en ligne
8 février 2026
Nombre de vues
582