34130 Mauguio
Mas agricole avec dépendances (190 m² + 70 m² de dépendance | Mauguio (34130)
Mas agricole avec dépendances (190 m² + 70 m² de dépendance | Mauguio (34130)
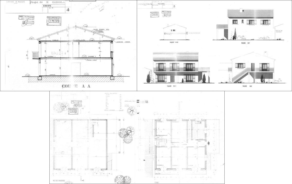
Maison vigneronne comprenant avec au 1er étage : 1 cuisine, 1 séjour, 4 chambres, 1 wc, 1 sdb + 1 terrasse de 20 m² exposition sud.
Rez de chaussée aménageable de 120 m².
Prévoir travaux de mise au normes pour l'assainissement et le remplacement des menuiseries extérieures.
Chauffage avec cheminée, clim réversible et radiateurs électriques.
1 dépendance non attenante de 70 m² à rénover.
Attenant à la maison principale : 1 hangar 130 m² + 1 hangar frigorifique avec isolation traditionnelle comprenant 4 frigos pour une superficie 290 m².
Terrains entretenus et cultivés.
Rez de chaussée aménageable de 120 m².
Prévoir travaux de mise au normes pour l'assainissement et le remplacement des menuiseries extérieures.
Chauffage avec cheminée, clim réversible et radiateurs électriques.
1 dépendance non attenante de 70 m² à rénover.
Attenant à la maison principale : 1 hangar 130 m² + 1 hangar frigorifique avec isolation traditionnelle comprenant 4 frigos pour une superficie 290 m².
Terrains entretenus et cultivés.
750 000 €
190 m²
Code Postal
34130
Ville
Mauguio
Type de bien
Maison
GES
B
Classe énergie
D
Mise en ligne
11 février 2026
Nombre de vues
246